Since its inception in the 1890′s, Dilworth has been one of Charlotte’s most distinct neighborhoods. Developed as the city’s first suburb, Dilworth was connected to downtown by Charlotte’s first electric streetcar. The success of the initial development of Dilworth led its creator, Edward Dilworth Latta, to expand the neighborhood in the 1910′s, under a plan by the Olmstead Brothers, then the nation’s preeminent landscape designers.
Although their plan was never fully implemented, the Olmstead’s curved roads and dramatic landscaping set the tone for much of Charlotte’s future character. In 1987, Dilworth was listed on the National Register of Historic Places.
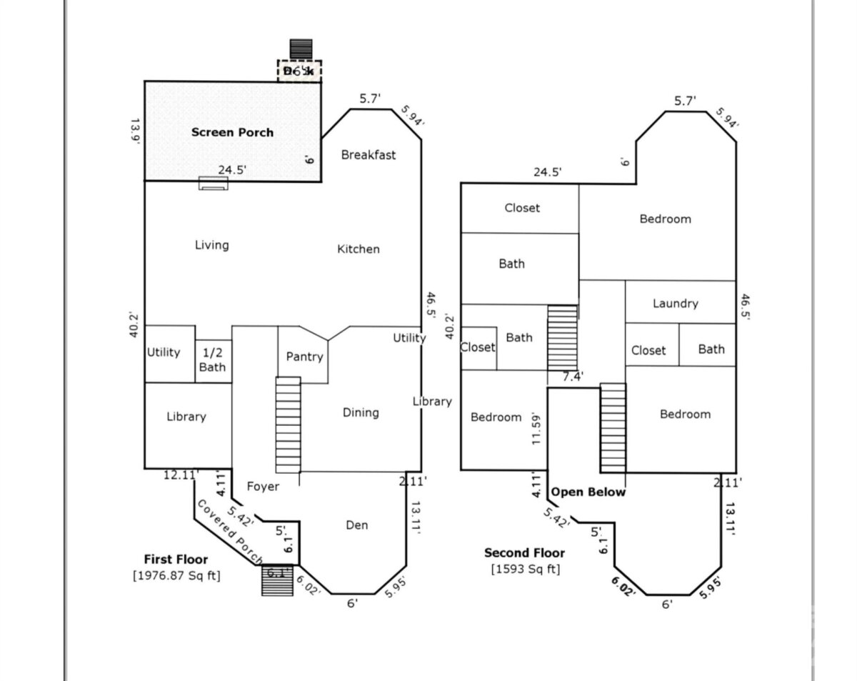
Exceptional opportunity in the heart of sought-after Dilworth Historic District! This stunning 5-bedroom, 4 1/2-bath Queen Anne style residence offers over 4,500 square feet of beautifully designed living space on a .23-acre lot. Blending timeless character with refined comfort, the home showcases elegant vintage finishes, recently refinished hardwood floors, and classic architectural charm throughout. Separate second living quarter features its own entrance and utilities, providing ample space and flexibility. Gracious living and dining spaces flow seamlessly for both everyday living and entertaining, while a generously sized gourmet kitchen and bedrooms with en-suite bathrooms, provide comfort and privacy. Situated on a spacious lot—the property offers room to relax, garden, or create your ideal outdoor retreat. All of this just minutes from Uptown Charlotte, top dining, shopping, parks, and the Light Rail. Offered at a competitive price, this is a rare opportunity to own a signature home in Charlotte!
| MLS#: | 4352243 |
| Price: | $2,260,000 |
| Square Footage: | 4661 |
| Bedrooms: | 5 |
| Bathrooms: | 5.1 |
| Acreage: | 0.23 |
| Year Built: | 1997 |
| Type: | Single Family Residence |
| Listing courtesy of: | Carolina Hope Real Estate LLC - carolinahoperealestate@gmail.com |
Contact An Agent:



















































